Centre Pointe Rehab skilled nursing

Tallahassee, FL

Centre Pointe

skilled nursing & rehabilitation center

2015-2017

Lantz-Boggio Architects

 

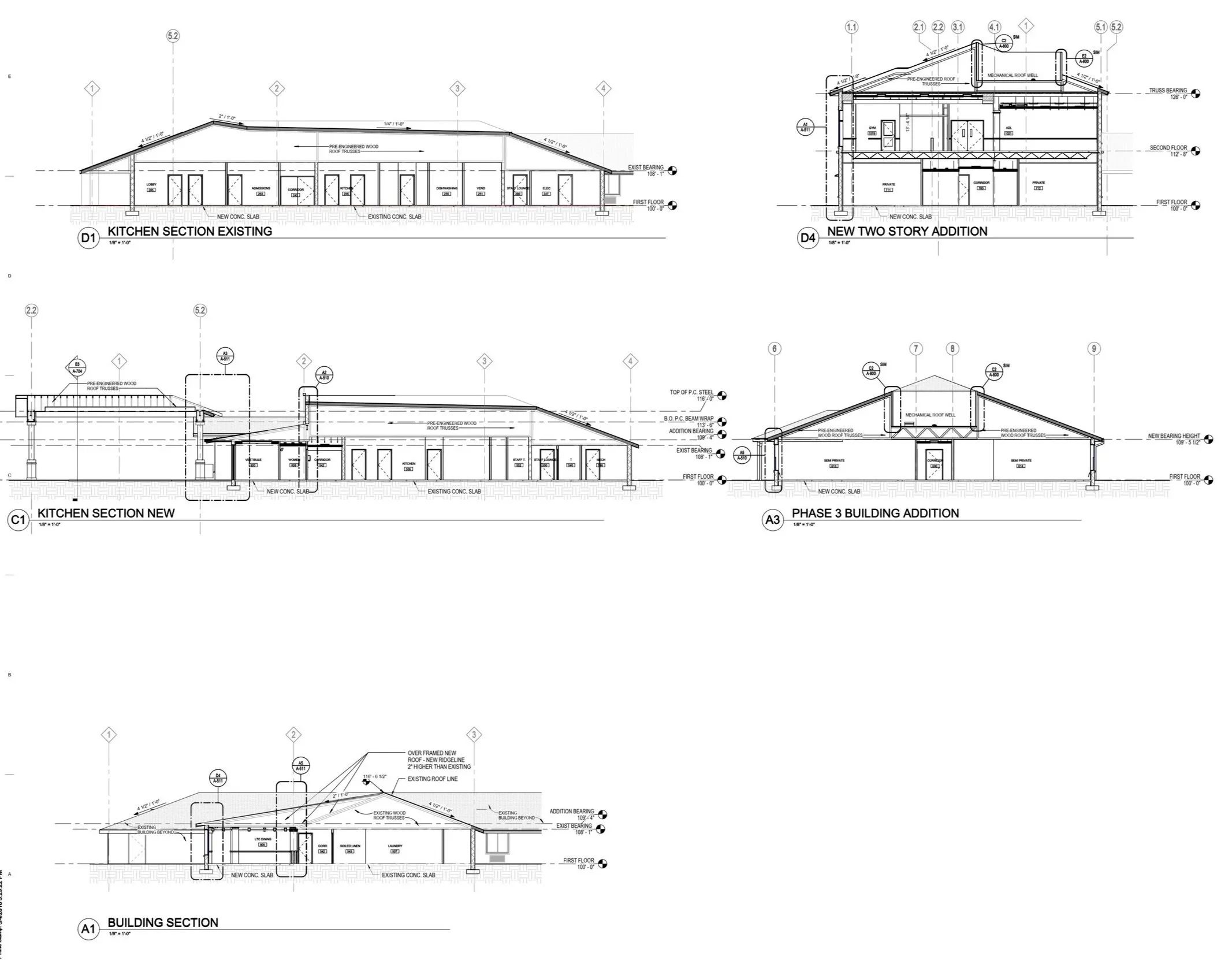
Centre Pointe Skilled Nursing and Rehabilitation Center was a project in which I handled the day-to-day operations and management from late 2015 until mid-2017. I worked directly with the owner on the design of this addition and renovation in Tallahassee, Florida. I designed this project from schematic design through design documents, construction documents, and continued to be the main point of contact for construction administration. This project received approved building permits and AHCA (Florida Agency for Healthcare Administration) approvals in mid-2016. I was the one managing both the building department in Tallahassee and AHCA communication. This building allowed me to experience the entire process, and I learned how important correct documentation and detailing are in construction documents while picking up any RFI’s or other questions during construction administration.