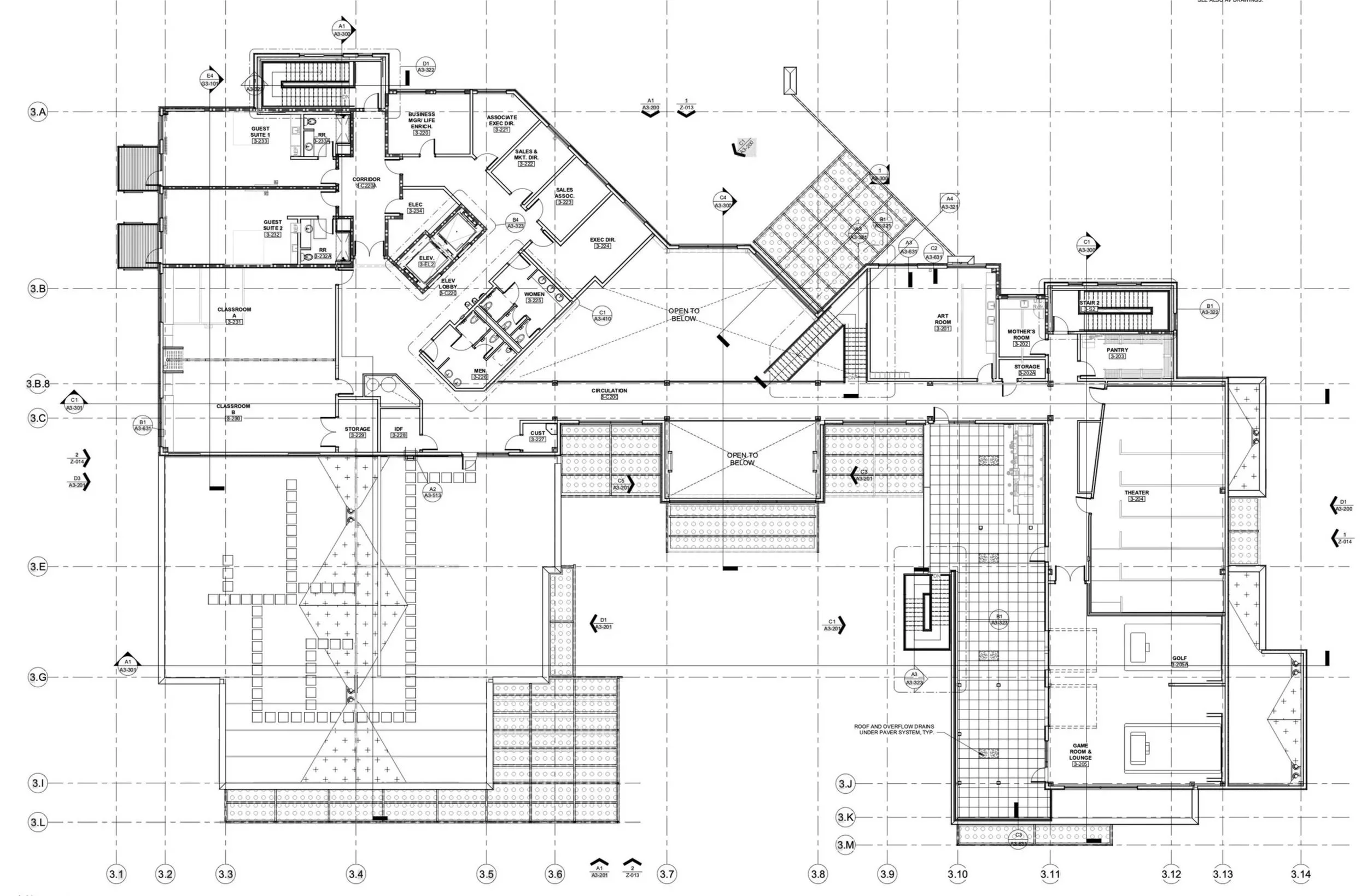
Tucson Senior Living Campus

Tucson, AZ

Tucson Senior Living Campus

2023-Present (Under Construction)

HCM

 

Tucson Senior Living Campus is a $90 Million 196 unit luxury senior living campus on 22 acres. The active community was designed around amenities including walking trails, club house, pool and cabana, dog wash and pickleball courts with a food truck along a regional walking path.